Barbara Schaub
Architektin ETH
1975 geboren in Fribourg.
1995–2003 Architekturstudium an der ETH Zürich und UdK Berlin, Diplom an der ETH Zürich bei Bruno Krucker.
2003–2011 Mitarbeit bei Andreas Fuhrimann Gabrielle Hächler Architekten, Zürich.
Seit 2013 eigenes Architekturbüro mit Regula Zwicky.
Akademische Tätigkeit:
2009–2011 Entwurfsassistentin bei Andreas Fuhrimann und Gabrielle Hächler, ETH Zürich.
2011–2014 Entwurfsassistentin bei Prof. Wolfgang Schett, ETH Zürich.
2017-2018 Entwurfsassistentin bei Schneider Studer Primas Architekten, ETH Zürich
Seit 2022 Expertin Bachelor-Thesis an der HSLU
Regula Zwicky
Architektin ETH SIA
1976 geboren in Zürich.
1997–2003 Architekturstudium an der ETH Zürich, Diplom bei Wolfgang Schett.
2002–2006 Mitarbeit bei Peter Märkli Architekt, Zürich. 2007–2013 Mitarbeit bei Andreas Fuhrimann Gabrielle Hächler Architekten, Zürich.
Seit 2013 eigenes Architekturbüro mit Barbara Schaub.
Akademische Tätigkeit:
2003–2006 Assistentin bei Gastdozent Conradin Clavuot, ETH Zürich. 2015–2016 Assistentin, 2017–2019 Oberassistentin am Lehrstuhl Annette Gigon / Mike Guyer, ETH Zürich.
Seit 2021 Dozentin ZHAW für Entwerfen und Konstruieren.
30. August 2025
Besichtigung Mehrfamilienhaus an der Limmat II
Hönggerstrasse 5, 8037 Zürich
Samstag, 30. August, 14-18 Uhr

1. Juni 2025
Tagesbetreuung Hebel in St.Gallen auf der Shortlist für den SWISS ARC AWARD 2025.
20. September 2024
PRIX LIGNUM - Auszeichnung Region Ost für die Tagesbetreuung Hebel in St. Gallen
17. Juli 2024
Wir freuen uns sehr über den Zuschlag beim Planerwahlverfahren für den Umbau und die Erweiterung der Schulanlage Rütihof in Zürich
13. April 2024
Besichtigung Mehrfamilienhaus an der Limmat, Hönggerstrasse 7, 8037 Zürich
Samstag, 13. April, 14-18 Uhr
Wir freuen uns auf Euch!
6. Dezember 2023
Wir freuen uns über den 1. Rang beim Wettbewerb für den Neubau Kindergarten Goldern in Aarau!
31.05.2023
Vortrag im Architekturforum Zürich "Junge Schweizer Architektinnen und Architekten"
Mittwoch, 31. Mai, 19h, Zollstrasse 115, 8005 Zürich
Wir freuen uns auf Euch!
04.02.2023
Besichtigung Neubau Tagesbetreuung Hebel, Gotthelfstrasse 13, 9011 St. Gallen
Samstag 4. Februar 2023, 11h-16h
Wir freuen uns auf Euch!
12.01.2023
Opening of the exhibition "Colors" at Forum Stadtpark Graz. Our contribution is part of Diskursiv Nr. 2 Colors – thank you Diskursiv for invitig us being part of your group show!
12.05.2022
Stadt St.Gallen baut: Architektur für eine zeitgemässe Tagesbetreuung
Baustellenführung im Rahmen der HSG-Vorlesung mit Dr. Katrin Eberhard, Leitung kantonale Denkmalpflege St. Gallen
01.04.2022
Opening der Galerie Eva Presenhuber in Wien. Wir freuen uns, auf die neuen Räume anzustossen!
30.09.2021
Symposium „Thinking within the Model“ im Forum Stadtpark Graz
23.09.2021
Opening of the exhibition "Models" at Forum Stadtpark Graz. Diskursiv – Association for Architectural Research – is responsible for the exhibition and invited us to participate. The aim is to create a discourse about the appreciation of classical model building as a tool of architecture.
04.06.2020
Opening in den neuen Räumen der Galerie Eva Presenhuber an der Waldmannstrasse, Zürich
19.02.2020
Studierende der Professur Annette Spiro ETHZ besuchen und analysieren die von uns umgebaute Wohnung im Haus Demarmels in Zürich
23.01.2020
Opening in den neuen Räumen der Galerie Eva Presenhuber an der Rämistrasse, Zürich

Hochparterre Wettbwerbe, Wifag-Areal Bern
Mai 2025
Colors: Diskursiv No. 2, Jovis Verlag, 2024
Hochparterre Themenheft «Prix Lignum 2024»
Models: Diskursiv No. 1, Jovis Verlag, 2022

Hochparterre Wettbewerbe, Tagesbetreuung Hebel
Oktober 2019
baublatt, "Wie ein zweites Zuhause", 11.10.2019 | Nr. 41
TEC21, "Längsstreifen machen schlank", 20.9.2019 | Nr. 38
Wallpaper*, Design Awards 2018, "BEST RETREAT", Februar 2018
Hochparterre Wettbewerbe, Schulhaus St. Margrethen, "Feld, Wald und Wiesenau", Heft 5: Dezember 2017
"Résidences suspendues" TRACES 09 / 2017: Bibliothèques #1
Hochparterre Wettbewerbe Atelierbesuch, "Von der Klarheit der Ideen", Heft 3: Juli 2017
TEC21, "Ein Parkhaus mit Poesie", 2.6.2017 | Nr. 22
LE TEMPS, "des cabanes pour écrire entre ciel et terre", 14.10.2016
Ehemalige
Tobias Gasser
Celine Gantenbein
Greta Kochhäuser
Toja Coray
Elias von Dombrowski
Corinne Räz
Johannes Hirsbrunner
Allegra Stucki
Jonathan Schneckenburger
Benjamin Müller
Anja Schelling
Nina Stauffer
Tiziano Schuerch
Isabel Ramseier
Kein Teil dieser Website darf ohne ausdrückliche schriftliche Genehmigung von Schaub Zwicky Architekt:innen in irgendeiner Form reproduziert oder unter Verwendung elektronischer Systeme verarbeitet, vervielfältigt oder verbreitet werden. Die Autorschaft übernimmt keinerlei Gewähr für die Aktualität, Korrektheit, Vollständigkeit oder Qualität der bereitgestellten Informationen. Copyright Schaub Zwicky Architekt:innen GmbH.
Grafische Gestaltung: Krispin Heé und Samuel Bänziger
Programmierung: Olivier Hug
Fotografie: Valentin Jeck, Linda Suter, Pierre Marmy

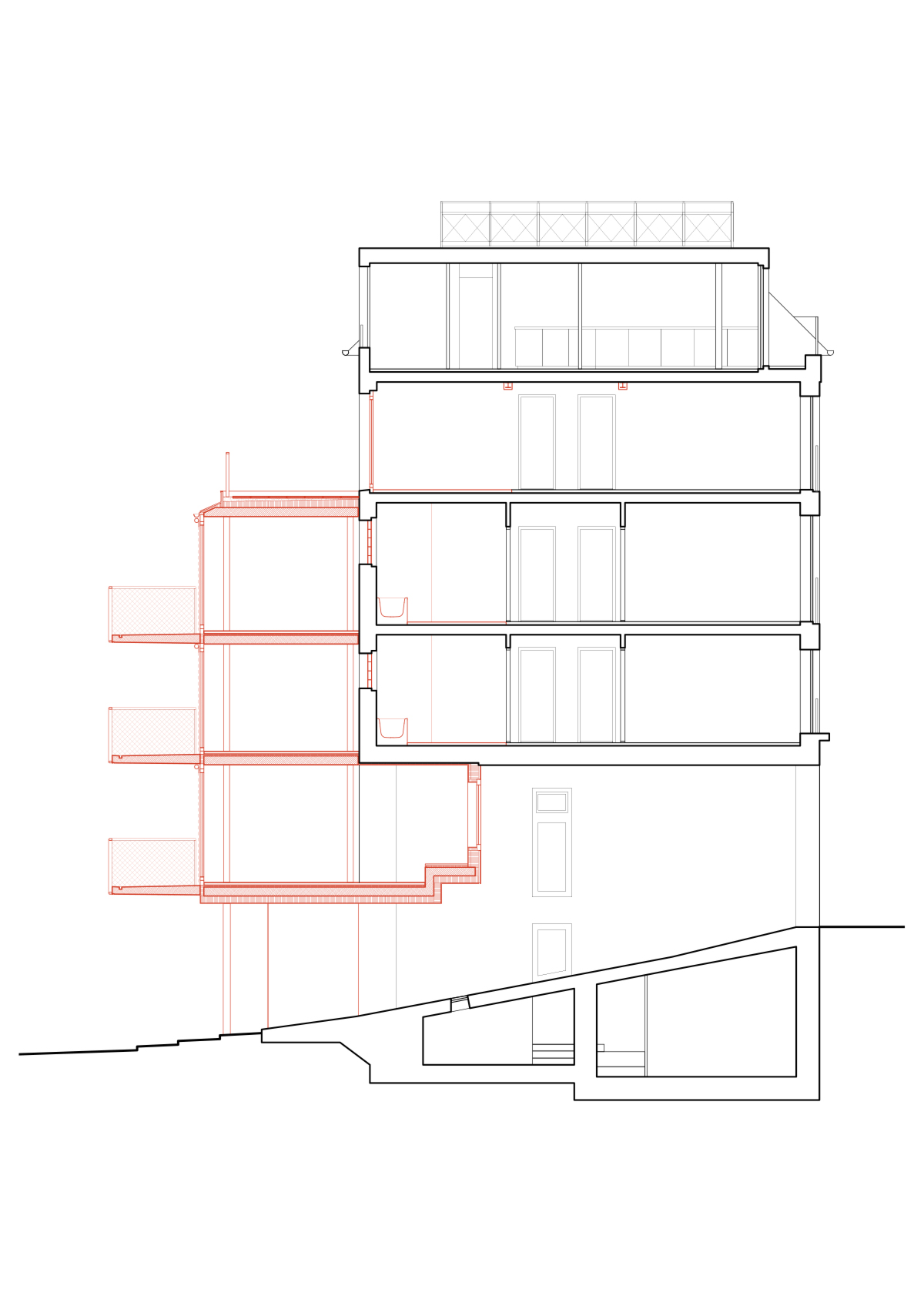
Der An- und Umbau des Hauses an der Hönggerstrasse 7 ist ein Beitrag zur nachhaltigen innerstädtischen Verdichtung und ein Beispiel für konsequenten Bestandserhalt. Wenige kostengünstige Massnahmen schaffen dabei ein Maximum an neuem Wohnraum. Die Eingriffe in den Bestand sind minimal. Die statische Struktur bleibt erhalten, die Raumdisposition weitgehend unverändert. Konsequenterweise ist der Anbau als statisch unabhängiger Platten-Stützen-Bau konzipiert, der an den Bestand andockt, ohne diesen strukturell zu beanspruchen. Diese Strategien tragen nicht nur zu einer markanten Reduktion grauer Energie bei, sie schaffen auch eine charakteristische Wohnarchitektur, die aus der Dialektik von Alt und Neu ihren besonderen Reiz bezieht.
Projektleitung: Philippe Hungerbühler
Tragwerk: Bühler Fischli Bauingenieure
Bauphysik: aik Kurt Ritter und Gartenmann Engineering
Die Tagesbetreuung der Primarschule Hebel liegt mitten in St. Georgen, einem Wohnquartier im Süden der Stadt St. Gallen. Als dreigeschossiges Volumen fügt sich der Neubau mit kleinem Fussabdruck präzise in den prächtigen Baumbestand ein. Die drei Horteinheiten sind in drei übereinander liegenden Geschossen organisiert, im Sockelbereich befinden sich die Küche sowie die Räume für die Mitarbeitenden. Freie Aussentreppen folgen in ihrer Bewegung den Bäumen und bilden je einen direkten Zugang zu den drei Betreuungseinheiten, die von vielfältigen Ausblicken, optimaler Belichtung und der familiären Atmosphäre einer Geschosswohnung profitieren.
Offener Wettbewerb 2019, 1. Rang
Landschaftsarchitektur: Mettler Landschaftsarchitektur AG, Gossau
Baumanagement: bauer Bauprojektmanagement AG, St.Gallen
Kunst am Bau: Francisco Sierra
Fotografie: Katalin Deér
Tobias Pils, Between Us Space, Featuring Gerwald Rockenschaub, Exhibition 2022
Jean-Frédéric Schnyder, Öl auf Leinwand, Exhibition 2024, Galerie Eva Presenhuber Waldmannstrasse, Zürich
Photo Credit: Stefan Altenburger Photography
Zwischen 1963 und 1965 errichtete Hans Demarmelsan an steiler Hanglage in Zürich-Höngg ein Ensemble aus drei skulpturalen Bauten in rauem Sichtbeton. Auch das Innenleben der Häuser ist plastisch durchgebildet. Die Wohnräume entwickeln sich über mehrere halbgeschossig versetzte Ebenen, die ein offenes Raumgefüge bilden. Charakteristisch ist innen wie aussen die Verwendung von roh belassenen natürlichen Materialien wie Sichtbeton, Backstein, roten Klinkerplatten, Nussbaumholz und grobem Putz. Das „Haus C“ beinhaltet zwei Wohnungen, von denen die obere nach einem Besitzerwechsel komplett instandgesetzt wurde. Dabei wurden neben der Behandlung der Oberflächen die Bäder und Küche erneuert sowie verschiedene Fenster ersetzt bzw. restauriert. Zudem wurde der Grundriss in den Originalzustand zurückgeführt, mit kleinem Gäste-WC und einem Zimmer beim Eingang.
In der Zürcher Gemeinde Uitikon entsteht ein neues Quartier mit Wohnraum für 800 Personen. An dessen Eingang sind ein öffentlicher Platz mit einem Pavillon sowie eine Parkierungsanlage geplant. Mit einer einfachen Idee antwortet das Projekt auf die verschiedenen Bedürfnisse und bindet Architektur, Landschaft und Infrastruktur zusammen. Eine von Rundstützen getragene Platte sitzt wie ein Balkon in der sanft abfallenden Landschaft und bildet gleichzeitig Dach und Terrasse: unten die Parkierung, oben der Aufenthaltsbereich. Kreisrunde Öffnungen in der horizontalen Scheibe lassen Bäume von unten emporwachsen und schaffen gleichzeitig eine angenehme Lichtsituation auf der Ebene der Parkierung. Die zenital belichtete Rückwand, die perforierte Decke und der direkte Bezug zum Aussenraum verleihen der Parkierungsebene einen hellen und offenen Charakter.
Selektiver Wettbewerb 2017, 1. Rang
Landschaftsarchitektur: Kuhn Landschaftsarchitekten GmbH, Zürich
Die Fondation Jan Michalski pour l‘Ecriture et la Littérature beherbergt neben einer Bibliothek, einem Auditorium und Ausstellungsräumen acht individuelle Wohneinheiten, so genannte Cabanes, welche Schriftstellerinnen und Schriftstellern aus der ganzen Welt für einen temporären Aufenhalt zur Verfügung stehen. Diese Cabanes, ein jedes von einem anderen internationalen Architekturbüro entworfen, sind an einem weit in die Landschaft greifenden perforierten Dach aufgehängt. Unser Cabane bietet einen grosszügigen Raum zum Leben und Arbeiten. Schreibplatz, Wohn- und Schlafbereich gehen wie in einem Atelierraum fliessend ineinander über. Die grossen Fenster falten sich wie Flügel aus der einfachen Grundform des Volumens und öffnen den Blick in die Weite der Landschaft.
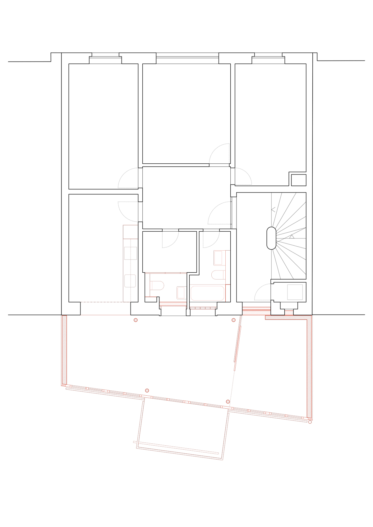
Das Reihenhaus aus den 30er Jahren liegt im «Blüemliquartier» in Zürich-Altstetten, eine denkmalgeschützte Siedlung im Geiste des Gartenstadtideals. Durch kleine lokale Eingriffe sowie durch eine Reorganisation der Bäder und des Dachgeschosses wurde das Haus auf die spezifischen Bedürfnisse der Familie angepasst. Neue Rundläufe schaffen eine Grosszügigkeit und Offenheit trotz eher kleinen Geschossflächen. Ein neuer Anbau mit Filigranverglasung erweitert den Wohnraum auf eine zeitgemässe Grösse und öffnet ihn grosszügig in den Garten mit schönem alten Obstbaumbestand.
Das Haus für eine Familie mit vier Kindern liegt am Rande des Bergdorfs Riein in der Surselva. Mit dem Neubau wird die bestehende Bebauungsstruktur ergänzt und in ihrer Körnung und Typologie weitergeführt. Der steil abfallenden Hanglage begegnet das Projekt mit einem offenen Stützenfundament aus Beton, auf welchem ein zweigeschossiger Holzelementbau errichtet wird. Den Abschluss bildet ein offen belüfteter Dachstock mit einem Satteldach aus Trapezblech.
Entsprechend der Topographie tritt die talseitige Fassade volumetrisch akzentuiert in Erscheinung: Auf die landschaftlich einzigartige Aussicht ins Lugnez wird mit einer Versetzung der verschiedenen Geschosse reagiert. Die Terrasse, das obere Geschoss und das Satteldach kragen unterschiedlich weit aus, während die vollständig verglaste Öffnung des Wohn- und Essbereichs etwas zurücktreten.
Die Aussenfassade wird allseitig mit sägerohem Nadelholz beplankt. Langgestreckte horizontale Fensteröffnungen verleihen dem Bau einen zeitgemäss grosszügigen Ausdruck.
ARGE mit Andreas Fuhrimann Gabrielle Hächler Architekten
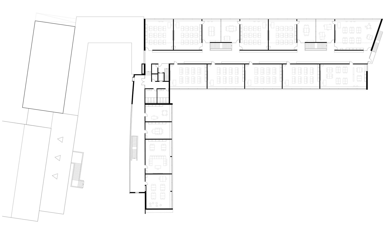
Die Schulanlage Schafisheim ist über Jahrzehnte kontinuierlich gewachsen, der Mittelpunkt bildet der Pausenhof mit einer eindrucksvollen Blickachse zwischen dem Schlössli und der weiten Landschaft. Das Projekt schlägt vor, das Gelbe Schulhaus mit einem zweigeschossigen Anbau zu erweitern. Ein übergreifendes Dach verbindet die neuen und bestehenden Bauteile zu einem neuen Ganzen. Ein nach Norden gerichtetes Oblicht in der ganzen Länge belichtet die tiefen Klassenzimmer und die beiden neuen Treppenanlagen. Der breite Mittelgang wird zum Begegnungsort für die Schüler aller Klassenstufen. Eine äussere Fassadenverkleidung in Holz verleiht dem Bau eine einheitliche Erscheinung, das ausladende Dach und die langen Brüstungsbänder unterstreichen die Horizontalität des Baukörpers. Als Kontrast zu der leichten Fassade werden im Aussenraum Elemente in Sichtbeton erstellt, die den Hauptkörper umrahmen.